Follow us

Vedi più foto
Cod. 33469
€ 435.000
Classe energetica: F EP glnr: 110.88 kwh/㎡
Lusso

Villa singola in Vendita a San Benedetto del Tronto

Residenziale Sud
380 mq
4
3
Descrizione

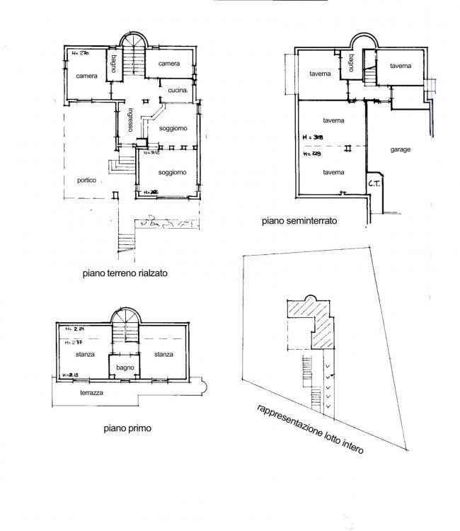
All'interno del rinomato complesso residenziale "Conca degli Ulivi", elegante zona collinare affacciata sulla città di San Benedetto del Tronto, proponiamo in Vendita un villino singolo di complessivi 380 m² coperti, dislocato su tre livelli, con giardino privato di circa 1.000 m².
La proprietà è così composta:

  • Piano seminterrato di circa 190 m², perfettamente rifinito, che ospita una spaziosa taverna rustica con camino, un'ampia stanza multiuso, lavanderia, ripostiglio, garage doppio e bagno con doccia. Le scale interne collegano comodamente i piani superiori.
  • Piano rialzato di circa 95 m², con ampio soggiorno, cucina separata (solo cottura), due camere da letto (una matrimoniale di generose dimensioni e una singola), e bagno con doccia.
  • Piano secondo, leggermente mansardato, con due grandi camere da letto, bagno con vasca e accesso a una terrazza panoramica con suggestiva vista mare.
La villa è dotata di ampie balconate abitabili su più lati, ideali per vivere gli spazi esterni durante la bella stagione. Il giardino, completamente recintato, è piantumato con numerosi ulivi, anche secolari, e offre riservatezza e tranquillità.
L'abitazione si presenta in buone condizioni generali, subito abitabile, con impianti a norma, riscaldamento autonomo a metano.
Situata in una delle zone residenziali più esclusive della città, la "Conca degli Ulivi" è un complesso composto unicamente da ville indipendenti, molte delle quali dotate di piscina e vista mare, a pochi minuti di auto dal centro cittadino e dal mare.
Soluzione ideale per chi cerca indipendenza, ampi spazi e privacy, senza rinunciare alla vicinanza alla città.

mostra di piùmostra di meno
Caratteristiche
Scopri le caratteristiche di questo immobile
Totale mq: 380 mq
Camere: 4
Bagni: 3
Locali: 8
Stato conservazione: Buono
Piano: Edificio
Piani totali: 3
Riscaldamento: Autonomo
Posto auto: Scoperto
Assenza barriere architettoniche: Si
Anno di costruzione: 1994
Stato attuale: Libero al rogito
Balconi: Presente, 40 mq
Terrazzo: Presente, 40 mq
Giardino: Privato
Distanza mare/lago: 3.500 mt.
Cucina: Cucinotto
Box: Doppio
Posizione: Zona residenziale
Animali ammessi: Si
Impianto Elettrico: A norma
Conformazione: Libera su tutti i lati
Tipo ristrutturazione: Mai ristrutturato
Qualità e pregio dell'immobile: ★★★
Finiture interne: ★★★
Qualità contesto e luogo: ★★★★
Bagno principale con: Vasca
Bagno secondario con: Doccia
Pavim. Reparto Giorno: Monocottura / gres porcellanato
Pavim. Reparto Notte: Parquet
Tipo serranda garage: Avvolgibile elettrica
Balcone abitabile
Camino o canna fumaria
Ingresso autonomo
Allestimento del giardino o del terreno: Verde allestito
Vista mare
Vista panoramica
Immobile idoneo per più nuclei familiari: per 1 famiglia
Impianto di riscaldamento a norma
Tipologia di proprietà: normale proprietà
Pannelli solari termici: Non presenti
Ubicazione immobile
Contattaci

Hai bisogno di un mutuo per acquistare l'immobile?

Alcuni immobili che potrebbero interessarti

Ultimo aggiornamento 13/10/2025
Villa singola in Vendita
San Benedetto del Tronto
Residenziale Sud
€ 435.000
380 mq
4
3
Menu
Ricerca
Chiamaci
Scrivici
Whatsapp