121 mq
3
2
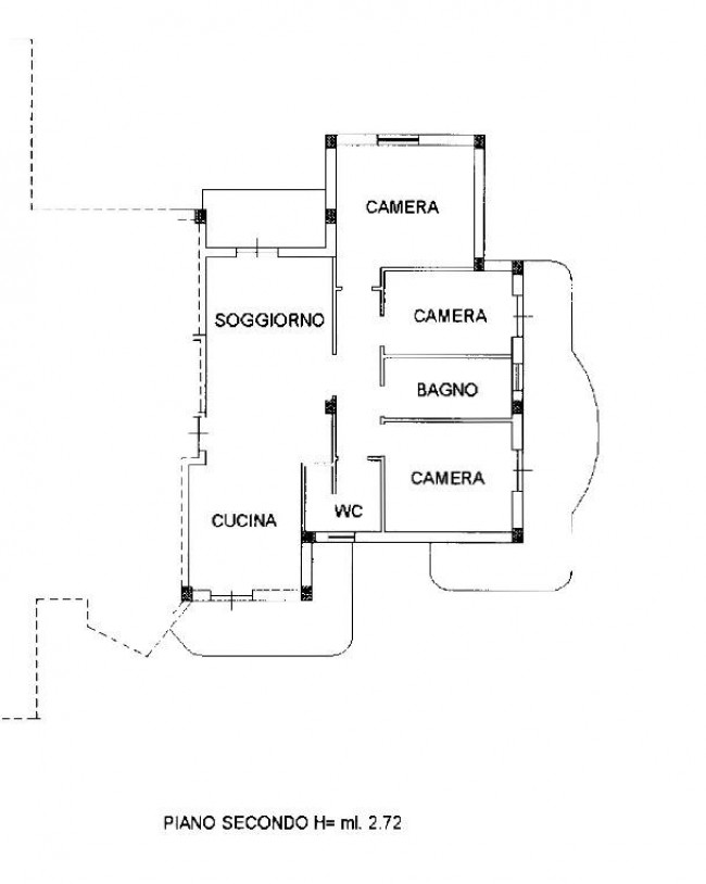
Appartamento di nuova costruzione, mai abitato, delle dimensioni di mq. 102,00 circa, oltre a balconi di mq. 38,00 circa aventi vista mare e sito all'interno di un fabbricato, realizzato nel 2009 sito in posizione centrale e servita. L'Appartamento posto al piano secondo servito di ascensore è composto da ingresso su ampio soggiorno con angolo cottura, volendo divisibile e renderlo cucina abitabile, disimpegno, tre camere da letto e due bagni. L'Appartamento si presenta in ottime condizioni generali, con portone d'ingresso blindato, infissi in legno con vetro a taglio termico, persiane in legno, pavimentazione in grès uniforme in tutti gli abienti, impianto elettrico a norma e impianto di riscaldamento autonomo. Possibilità di acquistare, con prezzo da computare a parte, garage (min. euro 15.000) e/o posti auto (euro 6.000) posti al piano terra del fabbricato.

121 mq
3
2