195 mq
3
3
A pochi passi dal centro di San Benedetto del Tronto, proponiamo in Vendita questa splendida casa cielo terra in stile Liberty unica nel suo genere. Ristrutturata completamente nel 2016, con materiali di altissimo livello, questa proprietà stupisce per la sapiente divisione degli spazi e per il design degli ambienti. La metratura totale interna si aggira sui 200 mq e colpisce il perfetto equilibrio tra spazi interni ed esterni; cosa rara per case ubicate nel centro Città. La facciata, vincolata dalla soprintendenza, è stata anch'essa riportata al suo passato splendore dopo attento restauro.
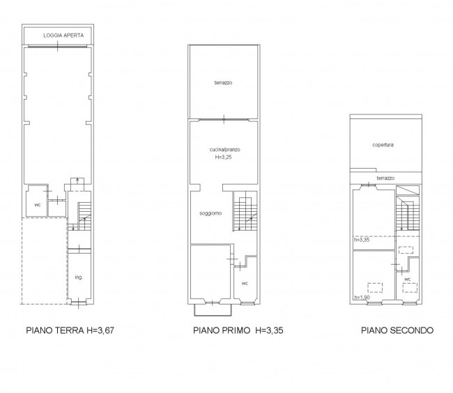
Dislocata su tre livelli, collegati tra loro da bella e comoda scala interna, la proprietà risulta così divisa: Piano terra:- Attraverso l'Ingresso indipendente raggiungiamo un fantastico Loft in stile Newyorkese con vetrate industriali e porte riciclate, il sogno di chi ama trascorrere momenti conviviali in un ambiente di design. Sullo stesso piano si trovano anche un bagno con vasca, una stanza uso lavanderia ed uno spazio esterno che offre molta luce naturale agli ambienti.
Il Piano primo è composto da: zona living doppia, divisa in angolo conversazione e zona pranzo con cucina a vista, una camera da letto matrimoniale e un bagno con doccia e finestra. La zona living si affaccia su un terrazzo di circa 40 mq che amplia, anche visivamente, questo piano e permettere di vivere all'esterno per gran parte dell'anno.
Il Piano secondo è composto da due camere matrimoniali ed un bagno con doccia e finestra. Anche su questo livello troviamo un grande terrazzo utilizzabile come solarium, spazio lettura e relax.
La proprietà è fornita di un comodo garage al piano strada che permette il ricovero di auto bici e motorini. Il garage è collegato all'abitazione attraverso comoda porta interna.
Il riscaldamento a pavimento aumenta il comfort degli ambienti, gli infissi con doppi vetri eliminano i rumori esterni e l'area condizionata permette di rinfrescare la casa al bisogno. I pannelli solari contribuiscono al risparmio in bolletta e le telecamere esterne, insieme all'impianto di allarme garantiscono la dovuta tranquillità.
La zona è centralissima ed il mare non molto distante.
Unica nel suo genere e ideale per chi cerca una soluzione indipendente in pieno centro cittadino

195 mq
3
3