158 mq
3
1
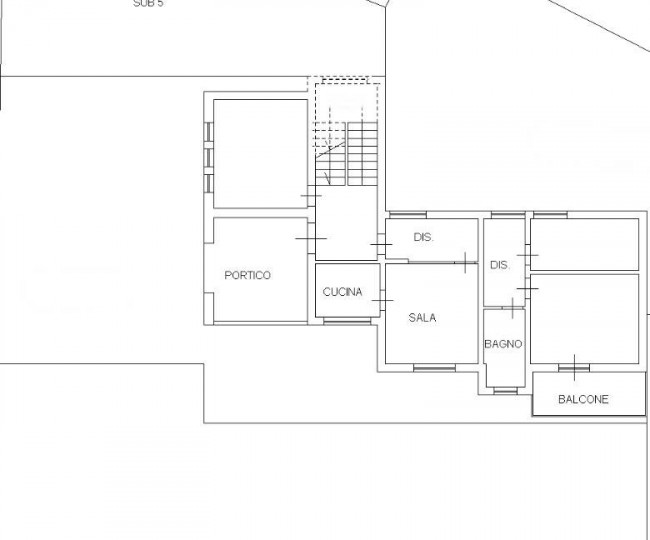
Nella panoramica zona collinare di Offida, Borgo Miriam, proponiamo in Vendita un Appartamento di ampia metratura con giardino, situato al piano terra di una palazzina di sole due unità immobiliari. L'immobile si sviluppa su una superficie complessiva di circa 136 mq, con un'esposizione che garantisce luce naturale durante tutto l'arco della giornata. Gli spazi interni sono ampi e versatili: l'ingresso apre su una zona portico, adiacente ad esso troviamo una prima zona giorno. Proseguendo attraverso un disimpegno troviamo una seconda zona giorno con cucina abitabile, due camere da letto e un bagno. All'esterno, l'Appartamento dispone di due balconi . L'immobile risulta essere abitabile ma richiede interventi di ristrutturazione, offrendo così l'opportunità di personalizzare ogni dettaglio secondo il proprio gusto e le proprie esigenze. Tramite scala interna accediamo a un comodo garage di circa 60 mq, oltre a due locali adibiti attualmente come magazzino. L'intera proprietà è circondata da un ampio giardino di circa 300 mq piantumato con alberi, piante e fusti di vari essenza, nonché da un orto e pozzo privato. Il fascino principale di questo immobile è proprio l'ampiezza, posizionato in una zona molto tranquilla con una splendida vista e libera su tutti e quattro i lati. Una soluzione perfetta per chi è alla ricerca di una casa grande, comoda, lontana dal caos e con ampi spazi esterni.

158 mq
3
1